232 Espanong Rd

Jefferson Twp, NJ 07849


 

Price: $425,000

GSMLS:  4010823
Type: Single Family
Style: Split Level
Beds: 3
Baths: 1 Full & 2 Half
Garage: No
Year Built: 1940
Acres: 0.26
Property Tax: $8,237
VirtualTour
Description
Open House Tomorrow 12PM–2PM.
3-bedroom 3 bath, 1 full 2 half, split-level located in Lake Hopatcong offering the layout and features buyers look for with room to improve and build equity.Hardwood floors run throughout the main living spaces. A freestanding wood-burning stove provides an additional heat source.Furnace, roof, and septic system are all approximately 5 years old.Oil heat system is in place with an active underground tank. Property is serviced by public water and septic.Set on a large yard with a detached storage shed. Ideal for buyers who recognize the long-term value of purchasing below the cost of renovated homes in the area.
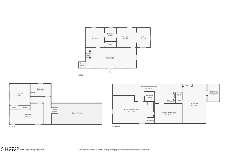
Rooms Sizes
Kitchen:
7x11 First
Dining Room:
11x11 First
Living Room:
29x11 First
Family Room:
23x15 Ground
Den:
n/a
Bedroom 1:
19x11 Second
Bedroom 2:
17x12 Second
Bedroom 3:
10x11 First
Bedroom 4:
n/a
Room Levels
Basement:
GameRoom,Media
Ground:
Family Room
Level 1:
1 Bedroom, Bath(s) Other, Dining Room, Kitchen, Laundry Room, Living Room
Level 2:
2 Bedrooms, Bath Main
Level 3:
n/a
Level Other:
n/a
Room Features
Kitchen:
Not Eat-In Kitchen
Dining Room:
Formal Dining Room
Master Bedroom:
n/a
Bath:
n/a
Interior Features
Square Foot:
n/a
Year Renovated:
n/a
Basement:
Yes - Finished-Partially
Full Baths:
1
Half Baths:
2
Appliances:
Dryer, Range/Oven-Electric, Refrigerator, Washer
Flooring:
Wood
Fireplaces:
1
Fireplace:
Family Room, Wood Stove-Freestanding
Interior:
n/a
Exterior Features
Garage Space:
No
Garage:
n/a
Driveway:
1 Car Width
Roof:
Asphalt Shingle
Exterior:
Vinyl Siding
Swimming Pool:
n/a
Pool:
n/a
Utilities
Heating System:
1 Unit, Baseboard - Hotwater
Heating Source:
Oil Tank Below Ground
Cooling:
None
Water Heater:
n/a
Water:
Public Water
Sewer:
Septic
Services:
n/a
Lot Features
Acres:
0.26
Lot Dimensions:
n/a
Lot Features:
n/a
School Information
Elementary:
Ellen T. Briggs Elementary School (K-2)
Middle:
Jefferson Middle School (6-8)
High School:
Jefferson High School (9-12)
Community Information
County:
Morris
Town:
Jefferson Twp.
Neighborhood:
Lake Hopatcong
Application Fee:
n/a
Association Fee:
n/a
Fee Includes:
n/a
Amenities:
n/a
Pets:
n/a
Financial Considerations
List Price:
$425,000
Tax Amount:
$8,237
Land Assessment:
$83,400
Build. Assessment:
$191,000
Total Assessment:
$274,400
Tax Rate:
2.90
Tax Year:
2024
Ownership Type:
Fee Simple
Listing Information
MLS ID:
4010823
List Date:
02-20-2026
Days On Market:
0
Listing Broker:
ADDISON REAL ESTATE
Listing Agent:
Kellene Addison
 

Request More Information

Shawn and Diane Fox
RE/MAX American Dream
3108 Route 10 West
Denville, NJ 07834
Call: (973) 277-7853
Web: MountainClubNJ.com


RE/MAX

Town & Valley II

211 Route 10 East
Succasunna, NJ 07876
Office: (973) 598-1008


Shawn and Diane Fox